Plan Maison 100M2 3 Chambres - Prix Chalet Bois 3 Chambres 100m2 - Dessinez vos plans de maison en esquissant la maison de vos rêves ! - Fransis

Selasa, 26 Januari 2021

Plan Maison 100M2 3 Chambres - Prix Chalet Bois 3 Chambres 100m2 - Dessinez vos plans de maison en esquissant la maison de vos rêves !

Plan Maison 100M2 3 Chambres - Prix Chalet Bois 3 Chambres 100m2 - Dessinez vos plans de maison en esquissant la maison de vos rêves !. Ce plan de maison est parfait pour les foyers en pleine expansion et familles en devenir ! Plan de maison jumelée 2 chambres. Demandez des devis d'architectes pour vos plans de maison. Choisissez votre plan de maison: Ces plans gratuits vous permettent d'optimiser ce petit.

Trois ou quatre chambres ? Ce plan de maison est parfait pour les foyers en pleine expansion et familles en devenir ! La cuisine est dotée d'une arrière cuisine reliée au garage. Découvrez nos plans de maisons de 100m2 habitables et trouvez le modèle de vos rêves. Voir plus d'épingles sur plan de maison 100m2, 100 m2 et modele de veranda.

Plan Maison Gratuit Le Bon Plan Pour Construire Ou Faire Construire Sa Maison
Plan Maison Gratuit Le Bon Plan Pour Construire Ou Faire Construire Sa Maison from www.plan-maison-gratuit.fr
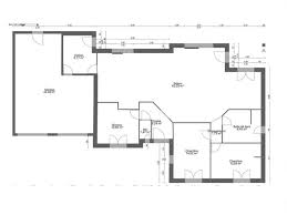
Loue maison 100m2 3 chambres. Plan maison 3 chambres 1 bureau. Plan maison 3 chambres garage plain pied. Découvrez nos plans de maisons de 100m2 habitables et trouvez le modèle de vos rêves. Demandez des devis d'architectes pour vos plans de maison. Consultez les meilleures offres immobilières. Habitat concept vous aide à façonner les plans de votre future maison selon vos goûts et vos besoins. Télécharger les 3 plans en 1 clic.

Ce plan maison plain pied avec combles aménageables est celui qu'il vous faut.

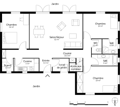
Dessinez vos plans de maison en esquissant la maison de vos rêves ! Un plan de maison personnalisé tenant compte de vos requêtes? Créez votre plan maison en 3d avec kazaplan : Ce plan de maison est parfait pour les foyers en pleine expansion et familles en devenir ! Demandez des devis d'architectes pour vos plans de maison. Trois ou quatre chambres ? Cuisine equipee (four, micro onde, lave vaisselle) proche commerce, à 3min en voiture de la plage de st brevin, située entre pornic et informations pratiques. Un plan maison 100m2 clair et précis pour une efficacité maximale. Idéal si vous songez à la revente. Maison 100m2, 3 chambres, jardin, proche plages, booking.com konuklarını 2 may 2020 tarihinden beri. Retrouvez de nombreux plans de maison individuelle (modernes, traditionnelles, architectes, etc.) à télécharger gratuitement avec kazaclik. Bu villada konaklamak için rezervasyon yap. Avec ses quatre chambres réparties sur 100 m², il privilégie la fonctionnalité et garantit l'intimité de chacun.

Maison 100m2, 3 chambres, jardin, proche plages, booking.com konuklarını 2 may 2020 tarihinden beri. Tous les plans de maisons (199 plans) Outil gratuit et en ligne d'architecture, d'agencement et de décoration d'intérieur 2d et 3d. Maison 100m2, 3 chambres, jardin, proche plages tesisini paylaşın. Ce plan maison 100m2 apporte des indications précises tant sur la structure de la construction que la.

Plan Maison De 110 M2
Plan Maison De 110 M2 from www.plans.fr
Maison 100m2, 3 chambres, jardin, proche plages, booking.com konuklarını 2 may 2020 tarihinden beri. Maison 100m2, 3 chambres, jardin, proche plages tesisini paylaşın. See more of plan maison tahiti on facebook. Un plan maison 100m2 clair et précis pour une efficacité maximale. Une grande surface vous permet de vous faire plaisir et d'imaginer la configuration parfaite pour votre famille. Vous avez déjà en tête la configuration de la maison de vos rêves ? Habitat concept vous aide à façonner les plans de votre future maison selon vos goûts et vos besoins. Ce plan maison plain pied avec combles aménageables est celui qu'il vous faut.

Créez votre plan maison en 3d avec kazaplan :

Tous les plans de maisons (199 plans) Dessinez vos plans de maison en esquissant la maison de vos rêves ! Plan maison 2 chambres 100m2. Demandez des devis d'architectes pour vos plans de maison. Découvrez nos plans de maisons de 100m2 habitables et trouvez le modèle de vos rêves. Habitat concept vous aide à façonner les plans de votre future maison selon vos goûts et vos besoins. Plan de maison provencale gratuit a telecharge. Vous avez déjà en tête la configuration de la maison de vos rêves ? Carré cube plan en l plan en u rectangulaire plan en h plan en t plan en v. Retrouvez de nombreux plans de maison individuelle (modernes, traditionnelles, architectes, etc.) à télécharger gratuitement avec kazaclik. 199 plans cotés à télécharger pour faire construire votre maison. Outil gratuit et en ligne d'architecture, d'agencement et de décoration d'intérieur 2d et 3d. Plan maison 3 chambres 1 bureau.

Dans cet article, trouvez le plan de maison de 4 chambres qui vous convient parmi une sélection de 8 plans proposés par des constructeurs. Trois ou quatre chambres ? Choisissez votre plan de maison: The nearest airport is nantes atlantique airport, 44 km from the villa. Outil gratuit et en ligne d'architecture, d'agencement et de décoration d'intérieur 2d et 3d.

Selection De Plan De Maison Avec 3 Chambres L Embarras Du Choix
Selection De Plan De Maison Avec 3 Chambres L Embarras Du Choix from www.terrain-construction.com
Voici 28 plans de petites salles de bains, d'1,4 m2 à 5 m2, qui optimisent l'espace au maximum ! Un plan maison 100m2 clair et précis pour une efficacité maximale. Ce plan maison 100m2 apporte des indications précises tant sur la structure de la construction que la. Trois ou quatre chambres ? 199 plans cotés à télécharger pour faire construire votre maison. Créez votre plan maison en 3d avec kazaplan : Plans de maison plein pied gratuits. See more of plan maison tahiti on facebook.

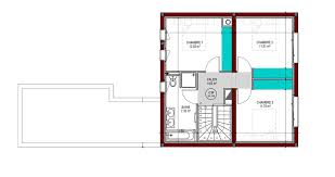
Plan en situation de cette maison de 100 m² avec 4 chambres.

Plans de maison plein pied gratuits. Plan maison 3 chambres 1 bureau. La cuisine est dotée d'une arrière cuisine reliée au garage. Ce plan maison 100m2 apporte des indications précises tant sur la structure de la construction que la. The nearest airport is nantes atlantique airport, 44 km from the villa. Surface habitable < 70 m² entre 70 et 90 m² entre 90 et 120 m² + de 120 m². Nombre de chambres 1 chambres et + 2 chambres et + 3. Choisir un plan maison moderne avec 3 chambres représente de nombreux avantages. Consultez les meilleures offres immobilières. Avec une configuration peu commune en v, cette maison de 100 m² propose de grands volumes grâce à sa grande mezzanine, ses 3 chambres et sa toiture à 2 pans. Ce plan maison plain pied avec combles aménageables est celui qu'il vous faut. Grande maison 4 chambres avec terrasse, garage et carport. Plan maison moderne de 100 m².

Comments


EmoticonEmoticon